Nebst modernster Wohnfläche entstehen in der Überbauung Lindengarten two äusserst interessante und attraktive Verkaufs- und Büroflächen.
Grosszügige und helle Räumlichkeiten verbunden mit modernster Infrastruktur bieten eine ideale Basis für Ihre Geschäftstätigkeit. Die Gebäudestruktur bietet einer Unternehmung, unabhängig der Branche, eine funktionale und flexible Nutzung in einer kundenfreundlichen Umgebung.
Bezugstermin ab sofort.
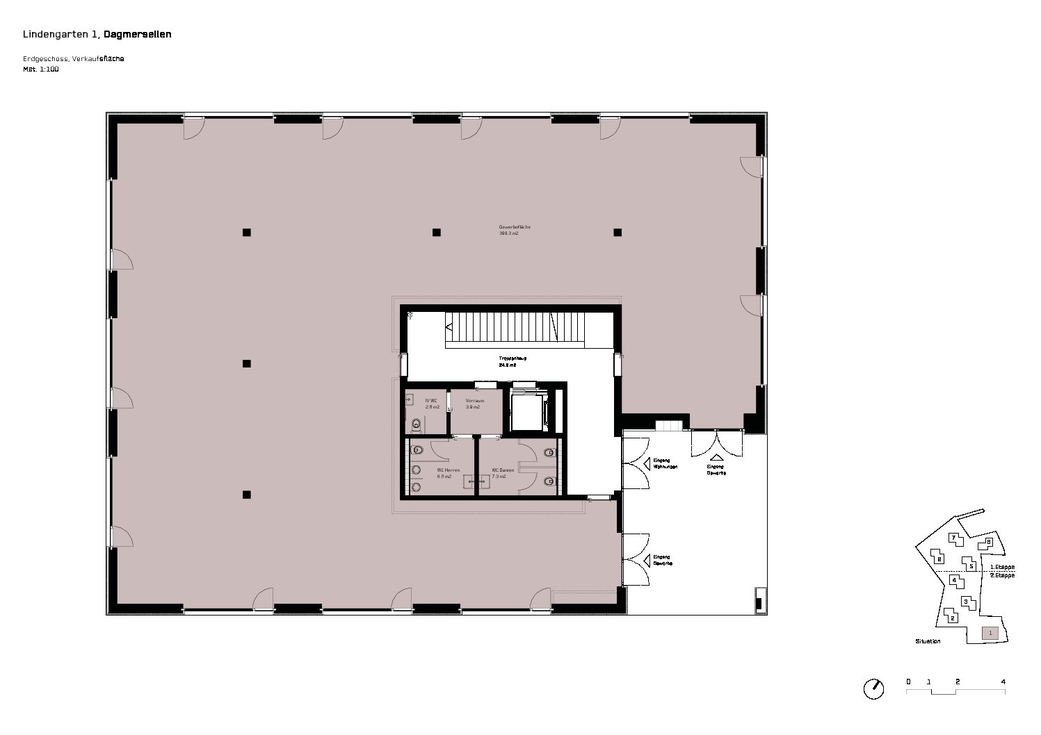
Die Verkaufs- und Büroflächen im Erdgeschoss der einladenden Adresse Lindengarten 1 werden im Edelrohbau vermietet. Dieser beinhaltet, nebst Wand- und Bodenbeläge, Fassade & Umgebung, eine fertig ausgebaute Kernzone bestehend aus Eingangsbereich, Lift, Treppenhaus sowie einem Nasszonenbereich (WC Damen / Herren / IV). Alle weiteren baulichen Massnahmen planen wir gerne zusammen mit dem neuen Mieter. Auch Besucherparkplätze sind bereits vorgesehen und werden realisiert.
Gewerbe
| Objekt | Nutzung | Mietzins M2 / p.a. | Grundriss | ||||
|---|---|---|---|---|---|---|---|
| Gesamtfläche | Büro, Gewerbe | CHF 180.00 | Download | ||||
| Anteil WC-Anlagen | |||||||
|
|
|||||||
| Teilbereich A | |||||||
|
|
|||||||
| Teilbereich B | |||||||
|
|
|||||||
| Teilbereich C | |||||||
|
|
|||||||
| Teilbereich D | |||||||
|
|
|||||||
| Lager 1 / UG | CHF 90.00 | Impressionen | |||||
| Lager 2 / UG | CHF 90.00 | ||||||
|
|
|||||||
| Lager 3 / UG | CHF 90.00 | Impressionen | |||||